Kensal Canalside Opportunity Area
On this page
- Planning application for Kensal Canalside Opportunity Area
- Timeline
- Where is the application site?
- What is currently on the application site?
- What is the application for?
- Where can I view application documents?
- Overview of the proposals
- How can I comment on the application?
- How will the application be assessed?
- When will a decision be made?
- What happens after the decision is made?
Planning application for Kensal Canalside Opportunity Area
On 6 October 2023, the council, as local planning authority received a planning application from Ballymore (London Arena) Limited and Sainsbury’s Supermarkets Limited seeking planning permission for redevelopment of their site in the northern land of Kensal Canalside Opportunity Area (KCOA).
The Council, as the local planning authority received further information and amended plans in March 2025 associated with planning application PP/23/06575.
The Kensal Canalside Opportunity Area (KCOA) has been selected as one of London’s 47 Opportunity Areas within the London Plan (2021) and the council’s Local Plan (2024) as an area for growth.
Timeline
The Council, as the local planning authority received further technical information and amended plans in March 2025 associated with planning application PP/23/06575. As such, a second public consultation until the 15 May 2025 has commenced. For changes please Application Contents Page:
- Application received: 6 October 2023
- Application validated: 1 November 2023
- First Public consultation commenced: 3 November 2023
- Public consultation ended: 12 January 2024
- Amended Plans and further information received to the Council March 2025
- Second Public consultation commenced: 4 April 2025
- Second Public consultation end: 15 May 2025
- Council’s Planning Committee meeting: 11 November 2025
- Application decided: TBC
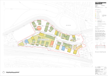
Where is the application site?
The site address is Sainsbury’s and surrounding former utilities land, Canal Way, LONDON W10. The application site is shown in the area outlined in red in the map below.
The site is located in Dalgarno ward.
What is currently on the application site?
The existing application site contains a Sainsbury’s superstore with surface car park and petrol filling station, storage and vacant land, as well as Canalside House, and the Boathouse Activity Centre with 16 flats above managed by Peabody.
What is the application for?
The application seeks planning permission for the redevelopment of Plots 1, 2, 4, 5 and 6 of the masterplan site through demolition of all existing buildings and structures and creation of a mixed-use development of residential, retail, commercial, and community uses, with associated infrastructure.
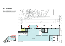
This is a hybrid application containing outline and detailed proposals. An outline application is about the general principles for how a site can be developed, leaving the details of Appearance, Means of Access, Landscaping, Layout and Scale to a later stage (known as ‘reserved matters’).
The diagram below shows which parts of the application site are for outline and detailed proposals.

The outline proposals are for:
- Residential floorspace and ancillary facilities
- Non-residential floorspace comprising flexible commercial, community, and other floorspace
- New pedestrian and vehicular access
- Open space and landscaping
- Car and cycle parking and other associated infrastructure works
The detailed proposals are for:
- supermarket and ancillary facilities
- ground floor commercial, business and service units
- leisure floorspace
- residential facilities
- improvements to existing site access at Ladbroke Grove
- new pedestrian and vehicular access
- internal roads and associated landscaping
- car and cycle parking and associated infrastructure works including remediation.
The application is for a major development, that is subject to Environmental Impact Assessment because it is likely to have significant environmental effects. The application proposals will affect the settings of conservation areas and listed buildings.
Where can I view application documents?
The planning application reference number is PP/23/06575.
The application contains drawings and documents, including the updated and amended information submitted in March 2025, can be viewed on our planning website under the Documents tab.
Additionally, we have provided some of the key documents taken from the application to give an overview of the proposals.
Overview of the proposals
Please be aware some of these documents are large files.
- Application contents page
- Cover letter
- Location plan
-
- Demolition plan
- Planning strategy hybrid application detail and outline
- Parameters – plot boundaries
- Parameters – height and massing
-
- Development specification
- Planning statement
- Planning statement: addendum
- Design and access statement: part 1 of 3
- Design and access statement: part 2 of 3
- Design and access statement: part 3 of 3
- Design and access statement: addendum
-
- Design code: part 1 of 2
-
- Design code: part 2 of 2
-
- Environmental statement non-technical summary
- Financial viability assessment
- Statement of community involvement
Environmental statement
Request for a hard copy of the Environmental Statement can be made by email to hello@triumenv.co.uk or telephone 0203 887 7118. Please quote the reference ‘Ladbroke Grove – Project Flourish EIA’. The approximate cost of a printed hard copy of the Environmental Statement is £3,595.90 per copy (plus delivery cost).
How can I comment on the application?
If you have any comments about the application use our online comment form.
Comments should be provided by 15 May 2025. Comments must be submitted in writing in order to be considered in the assessment of the proposals.
We cannot respond to your comments individually due to the volume we receive but you will receive a confirmation email on receipt of your comment. All comments received will be made publicly available to view online.
How will the application be assessed?
The application will be assessed by the Council’s Planning Officers, who will make a recommendation on whether or not to grant planning permission. Planning Officers will review the application, gather information to help assess it, and will visit the site. They will ask specialist advisers to give their views on the application to help assess it.
The assessment centres around whether or not the proposals comply with Planning policies contained in the Development Plan. Planning legislation requires planning applications to be determined in accordance with the Development Plan unless material considerations indicate otherwise.
The Development Plan includes the London Plan (2021) and the council’s Local Plan (2024).
The Council also has a Kensal Canalside Supplementary Planning Document (2021) which provides more detailed guidance on policies in the Local Plan.
In July 2024 the Council adopted the Local Plan 2024 after the Planning Inspectorate found it sound. The KCOA remains an allocated site under the Local Plan 2024.
The adopted policies in the Development Plan remains the starting point for assessing the application. Since the application was submitted the Local Plan 2024 was adopted and superseded the Local Plan 2019.
When assessment of the application has been completed, Planning Officers will prepare a report explaining the recommendation to grant permission or refuse permission for the proposal. We will publish this report on the Council’s website ahead of the application being presented to the council’s Planning Committee at a public meeting for their consideration as to whether or not to grant planning permission. We will advertise details of this meeting nearer the time so you can attend if you wish, and we will directly notify anyone who makes representations on the application of this date ahead of the meeting.
The application is referable to the Mayor of London. We will notify the Mayor of the outcome of the council’s Planning Committee’s consideration of the application. In their role of making strategic planning decisions, the Mayor may occasionally take over an application, thereby becoming the local planning authority. The Mayor must then hold a public Representation Hearing before deciding whether or not to grant planning permission.
When will a decision be made?
To be confirmed.
What happens after the decision is made?
When the application has been decided we will publish the decision notice on the Planning Application webpage.
If the application is granted there will be conditions which will require the applicant to submit further details for the Local Planning Authority’s approval. Those further applications will be advertised on the council’s website.
If the application is refused or granted with conditions the applicant thinks are unreasonable, they can appeal to the Secretary of State to overturn the decision. If this happens we will provide information about the appeal.
Last updated: 3 November 2025